Em Obras

Estacionamento e Prédio Comercial no Centro de Mogi das Cruzes

Centro

384.7m² Privativa
1596m² Total
8+ vagas

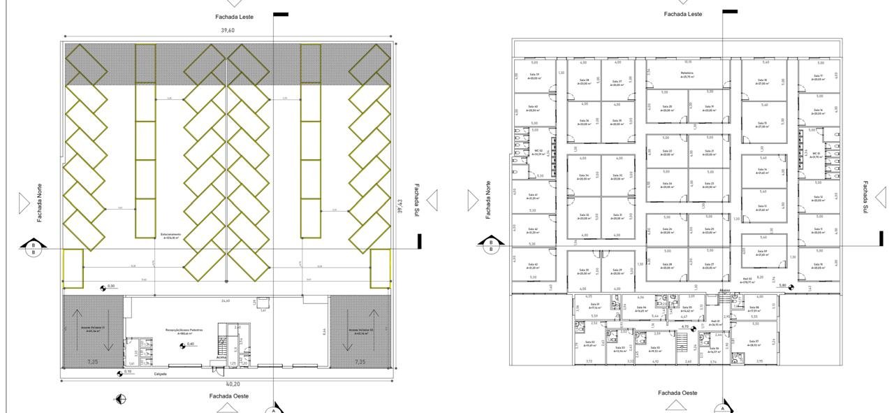
Apresentamos este imóvel singular no coração de Mogi das Cruzes, uma oportunidade exclusiva para investidores que buscam alto potencial de retorno. Em um terreno de 1.596m², o espaço conta com capacidade para 52 vagas de estacionamento, atualmente cobertas com toldo, oferecendo praticidade e fluxo constante de veículos.

O projeto em andamento contempla uma construção comercial de 384,70m², que será entregue finalizada pelo proprietário. O projeto prevê dois amplos salões no térreo e pavimento superior com 9 salas comerciais, todas com banheiro, atraindo potenciais clientes já interessados. Há ainda a possibilidade de expansão, com opção de um segundo projeto que amplia o número de salas, tornando o investimento ainda mais atrativo.

Localizado em região estratégica do Centro de Mogi, próximo à conhecida “avenida dos bancos”, o imóvel está inserido em uma área de otimização, com novos empreendimentos comerciais de destaque, como bares e restaurantes que vêm reacendendo o movimento no coração da cidade.

Uma oportunidade rara de investimento em localização privilegiada e com alto potencial de valorização.

Agende sua visita!

Código do Imóvel: 170020

Plantas

Projeto 1 Terreo
Projeto 1 Pav Sup
Projeto 2
{"isset_fin":true,"is_venda":"S","accepts_sell":"S","total_sell":0}
not found google-places
 
Beth Imóveis

Sobre nós

Somos dedicados a te ajudar a encontrar o lar dos seus sonhos, observamos cada detalhe do espaço para garantir que cada cliente receba o melhor atendimento possível.

Nosso objetivo é encontrar um lar que reflita a essência de cada cliente, onde cada espaço conte uma história única e traga memórias inesquecíveis.

Conte conosco para transformar seus sonhos em momentos únicos.

R$ Consulte
Quero saber mais:
VER MAPA